Committed To Quality, Committed To You
Afrika’nın ünlü şeker ve şekerli ürünler üreticisi ve bayileri. Şirket, şeker kristalleri, sıvı şeker, kahverengi şeker, palmiye özü şekeri vb. gibi şekerle ilgili çeşitli ürünlerin üretimine başladı.
Şeker kamışı, şekere dönüştürülen bir üründür. Küspe, pekmez vb bu işlemin yan ürünleridir. Kamış suyu çıkarıldıktan sonra küspe, geriye kalan kuru liftir.
Şekeri rafine etmek onu daha da saflaştırır. Ağır şurup ile birleştirilir ve karıştırıldıktan sonra santrifüj edilir. Sonuç olarak, kristalin iç kısmından daha az saf olan şeker kristallerinin dış kaplaması yıkanır. Tüm şeker çözüldüğünde, %60 katı bir şurup oluşur.
Şeker çözeltisini berraklaştırmak için, kalsiyum fosfatı çökelten fosforik asit ve kalsiyum hidroksit eklenir. Kalsiyum fosfat partikülleri, bazı atıkları hapseder, diğerlerini emer ve daha sonra sıyrılabilecekleri tankın tepesine doğru yükseltir. Bu, “fosfatlama” tekniğine bir alternatif, ona benzeyen ancak kalsiyum karbonat çökeltisi üretmek için karbon dioksit ve kalsiyum hidroksit kullanan “karbonatlaşma”dır.
Şurubun rengi açıldıktan sonra aktif karbondan süzülür ve beyaz rafine şeker elde etmek için kristalleştirilir. Kalan bazı yabancı maddeler, karbon tarafından adsorbe edilir. Saflaştırılmış şurup daha sonra aşırı doygunluğa kadar konsantre edilir ve vakumda kristalleştirilir.
Müşteri, 125m3/saat’lik bir eleme için çok büyük bir görevle karşı karşıyaydı ve bu görevi yerine getirebilecek çok büyük bir eleme makinesine ihtiyaç duyuyordu, ancak bu kadar büyük bir makineyi üretmek mümkün değil ve gerekli verimlilik de elde edilemedi.
Üreticinin karşılaştığı ikinci sorun, şurubun her eleme partisinden sonra eleğin temizlenmesi zorunluluğu idi. Bunun için çok fazla işgücüne ihtiyaç duyuyordu ve çok fazla zaman harcıyordu.
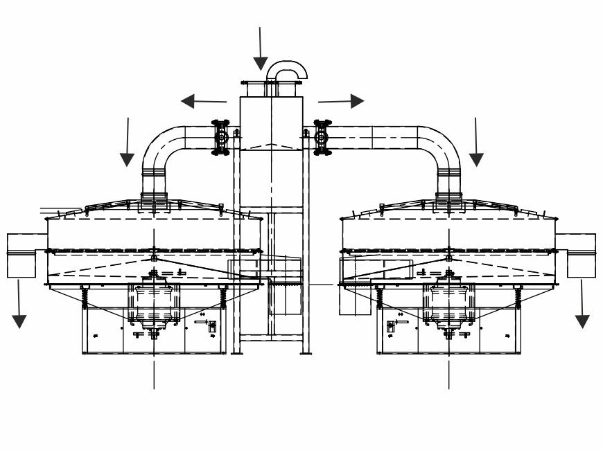
Üreticinin karşı karşıya olduğu üçüncü zorluk, tepe tampon tankından titreşimli eleğe dağıtım sistemiydi, burada akışın düzenlenmesi ve titreşimli elek üzerinde eşit olarak dağıtılması gerekiyordu.
Grup, Sivtek uzmanlarıyla temasa geçerek müşterinin zorluklarını ve sorunlarını derinlemesine tartıştıktan ve anladıktan sonra endişelerini paylaştı, satış ekibi ve tasarım ekibi, şeker şurubu üretiminin farklı aşamalarında ortaya çıkan sorunları çözmek için birden fazla çözüm buldu.
İlk olarak, 125 m3/saat eleme zorluğu, işleme sırasında eleğin tıkanmasını gidermek için tek katlı ve elek gözü açma düzenlemesine sahip 84” çapında 3 dev Vibro elek sağlanarak çözüldü.
İkinci engel, 3 makinenin tümü için, eleğe basınçlı bir temizleme sıvısı spreyinin püskürtüldüğü bir CIP (yerinde temizleme) sistemi verilerek çözüldü, ayrıca sıvının akışını düzenlemek için ayrı bir basınç düzenlemesi verildi.
Eşit dağıtımın son zorluğu, paslanmaz çelik bir dağıtım sisteminin özel olarak inşa edilmesi ve malzemenin gereksinimine ve akışına bağlı olarak manuel olarak ayarlanabilen bir yön değiştirme valfinin verilmesiyle aşıldı. Şeker şurubunu eşit olarak dağıtmak için tüm titreşimli eleklerde yön değiştirici vana %33.33 açılarak her elekte 42m3/sa akış sağlandı.
Sağlanan özelleştirilmiş çözüm, yalnızca istenen üretim miktarını elde etmelerine yardımcı olmakla kalmadı, aynı zamanda bu kadar büyük bir miktarı işleme ve miktarı elek tıkanmadan eşit olarak bölme gibi temel sorunları çözmeye de yardımcı oldu.
